Rotterdam – Verboomstraat 157A
€ 275.000,- k.k.
Omschrijving
Sfeervolle en praktisch ingedeelde woning met souterrain en twee slaapkamers op eigen grond!
Aan de Verboomstraat 157 A in Rotterdam treft u deze charmante en praktisch ingedeelde woning met souterrain, gelegen op eigen grond. De woning is gebouwd in 1932 en beschikt over een woonoppervlakte van circa 72 m², een vrijstaande houten schuur en energielabel C. Dankzij de functionele indeling en de aanwezigheid van twee slaapkamers is dit een ideale woning voor starters of kleine huishoudens.
De woning ligt in Oud-Charlois, op korte afstand van winkels en supermarkten. Het openbaar vervoer (tram en bus) is op loopafstand en biedt een snelle verbinding naar het centrum, terwijl ook diverse speeltuinen en groenvoorzieningen zich in de directe omgeving bevinden.
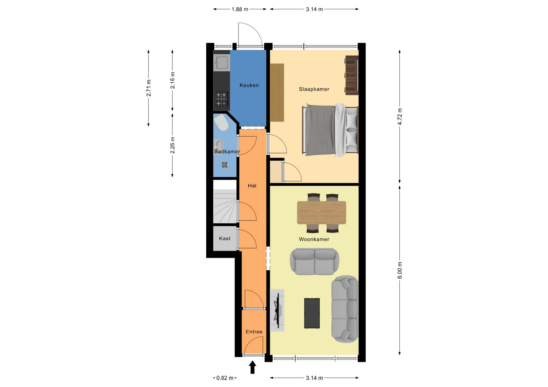
Globale indeling:
1e verdieping
Bij binnenkomst in entree, deur naar de hal, hal met meterkast, trapopgang, en toegang tot woonkamer, keuken, badkamer en slaapkamer;
* Lichte woonkamer aan de voorzijde;
* Keuken aan de achterzijde met een gaskookplaat en een afzuigkap, vanuit de keuken toegang naar buitenruimte;
* Nette badkamer met een inloopdouche, toilet en een wastafelmeubel;
* Slaapkamer I bevindt zich aan de achterzijde.
Souterrain:
Via de trap komt u in het beneden gedeelte van de woning.
* Binnenkomst in het souterrain, souterrain geeft toegang tot slaapkamer II
Kenmerken:
* Eigen grond
* Bouwjaar 1932
* Woonoppervlakte: ca. 72 m2
* Inhoud: ca. 240 m3
* Vrijstaande houten schuur ca. 19 m2
* Energielabel C
* CV-ketel (Intergas, 2025)
* VvE-bijdrage: € 55,- per maand
* Oplevering: in overleg
Ondanks dat grote zorgvuldigheid is betracht bij het samenstellen van de verkoopinformatie wordt voor de onjuistheid van de vermelde gegevens door de eigenaar noch door de verkopend makelaar enige aansprakelijkheid aanvaard.
In de koopovereenkomst wordt een ouderdomsclausule opgenomen.
De woning is gelegen in de wijk Oud-Charlois. Deze wijk valt onder de opkoopbescherming. Dit houdt in dat de woning niet gekocht mag worden voor verhuur, al gelden er uitzonderingen zoals de verhuur aan een kind of familielid. Kijk voor meer informatie op de website van de gemeente Rotterdam.
Rechtsgeldige koopovereenkomst pas ná ondertekening:
Een mondelinge overeenstemming tussen de particuliere verkoper en de particuliere koper is niet rechtsgeldig. Met andere woorden: er is (nog) geen koop. Er is pas sprake van een rechtsgeldige koop als de particuliere verkoper en de particuliere koper de koopovereenkomst hebben ondertekend. Dit vloeit voort uit artikel 7:2 Burgerlijk Wetboek. Een bevestiging van de mondelinge overeenstemming per e-mail of een toegestuurd concept van de koopovereenkomst wordt overigens niet gezien als een ‘ondertekende koopovereenkomst’.
Overdracht
- Status
- Beschikbaar
- Aanvaarding
- In overleg
- Koopprijs
- € 275.000,- k.k.
- Bijdrage Vve (p/m)
- € 55,-
Bouwvorm
- Soort object
- Appartement
- Bouwjaar
- 1932
- Bouwvorm
- Bestaande bouw
- Soort dak
- Plat dak
- Ligging
- Aan rustige weg, In woonwijk
Indeling
- Woonlaag
- 1
- Aantal woonlagen
- 2
- Woonoppervlakte
- 72 m2
- Overige inpandige ruimte
- 0 m2
- Inhoud
- 240 m3
- Aantal kamers
- 3
- Aantal slaapkamers
- 2
- Buitenruimte
- 0 m2
Energie
- Energieklasse
- C
- Energielabel einddatum
- 9 maart 2036
- Isolatie
- Dubbelglas
- Verwarming
- CV ketel
- Warmwater
- CV ketel
- CV ketel bouwjaar
- 2025
Buitenruimte
- Tuin
- Achtertuin
Bergruimte
- Schuur/berging
- Vrijstaand hout
- Oppervlakte
- 19 m2
Garage
- Garage
- Geen garage
Voorzieningen
- Voorzieningen
- Mechanische ventilatie, TV kabel, Natuurlijke ventilatie
- Parkeer faciliteiten
- Openbaar parkeren
Bijzonderheden
- Bijzonderheden
- Gestoffeerd
Kadastrale gegevens
- Sectie
- B
- Index
- 13
- Perceelnummer
- 6633
Video
Aanvraag hypotheekadvies
"*" geeft vereiste velden aan

